Керамзит или вермикулит? Технология утепления скатной кровли вермикулитом

Керамзит хорошо известен и зарекомендовал себя как долговечный надежный засыпной утеплитель, проверенный временем, который, до недавнего времени, повсеместно применялся в качестве кровельной теплоизоляции. Вермикулит обладает схожими свойствами с керамзитом. Это природные, экологически чистые материалы, которые обладают теплоизоляционными и сорбционными свойствами. При этом срок службы таких материалов не ограничен.

Технология производства вермикулита и керамзита предусматривает обжиг сырья при высоких температурах (вермикулит — гидратированная слюда, керамзит — глина), поэтому, в отличие от других теплоизоляционных материалов, они не только не горят и не выделяют вредных веществ, но и обладают жаропрочными, пожарозащитными свойствами.

6638736.jpg

Однако при производстве вермикулита частицы воды в межслойном пространстве гидратированной слюды под воздействием высокой температуры превращаются в пар, энергия которого разрывает спайки пластин слюды, увеличивая расстояние между пластинами в несколько раз, превращая его в столбики с параллельно расположенными поперечными пластинами. В результате чего размеры вермикулита увеличиваются в несколько раз, что приводит к увеличению объема и уменьшению насыпной плотности вермикулита. Именно пространственно-ориентированными пластинами слюды вермикулита объясняется уникальность свойств и его отличительные особенности, что и определяет его преимущества перед керамзитом.

6638737.jpg

Вермикулит

  • Обладает более низкой насыпной плотностью, он легче керамзита в 2-3 раза, что облегчает работу с вермикулитом, снижает нагрузку на строительные конструкции кровли и перекрытия сооружений.
  • Коэффициент теплопроводности вермикулита более чем в два раза ниже, чем у керамзита (0,06 Вт/м*С для вермикулита насыпной плотностью 150 кг/куб.м. против 0,12 Вт/м*С у керамзита М-400 и 0,14 Вт/м*С М-600).
  • В случае замены керамзита на вермикулит можно добиваться необходимой теплоэффективности при уменьшении слоя и соответственно объема теплоизоляции более чем в два раза.
  • Структура вермикулита обладает большой открытой пористостью, поэтому засыпки из него в строительстве характеризуются высоким звукопоглощением, звуковые волны в вермикулите переотражаются между слюдяными пластинам и затухают. Поэтому вермикулит обладает, в сравнении с другими строительными насыпными материалами, наилучшим характеристиками шумопоглощения. Коэффициент звукопоглощения вермикулита (1000 гц) — 0,7-0,8, что позволяет отнести вермикулит к материалам с высоким уровнем звукопоглощения, в отличие от керамзита, который относят к среднему уровню.


Применение вермикулита в качестве тепло- и звукоизоляции позволяет уменьшить расчетный объем за счет уменьшения толщины слоя теплоизоляции в два раза и получить:

  • более 30% экономии средств на стоимости материала (с учетом разницы в стоимости керамзита и вермикулита), работах и услугах по его доставке;
  • экономию времени на работах по укладке;
  • облегчение конструкции сооружения (снижение затрат на фундамент и конструкции перекрытий);
  • улучшенную звукоизоляцию строительных конструкций.


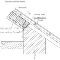
Малый удельный вес и высокая теплоэффективность позволяет применять вермикулит для утепления не только традиционных применительно для керамзита плоских кровель, но и для скатных крыш.

Разработанная проектной организацией "Градек Центр" технология применения вермикулита для утепления скатных кровель позволяет заменить наиболее распространенные для утепления мансардных этажей минеральную или базальтовую вату, которые обладают рядом недостатков, засыпкой вермикулита, что позволяет обеспечить долговечность теплоизоляции, исключить наличие токсичных и вредных веществ, которые часто используются при производстве ваты, и избежать нежелательного соседства грызунов и насекомых.

6638742.jpg 6638743.jpg

Использование вермикулита в малоэтажном строительстве находит применение при утеплении крыш, стен и подвалов и звукоизоляции межэтажных перекрытий. Вермикулит, так же как и керамзит, используется при производстве легких бетонов, ячеистых теплоэффективных стеновых блоков. Хорошо зарекомендовало себя применение звуко- и теплоизоляционных штукатурных смесей, жаропрочных и огнезащитных составов на основе вермикулита.

6639331.jpg

Вермикулит всегда в наличии на складе во Владивостоке по адресу ул. Днепровская 97в.

Упаковка: полипропиленовый мешок.

Насыпная плотность: 150 кг/м3.

Качество продукции соответствует ГОСТу 12865-67 и подтверждается Сертификатом соответствия.

Цена (с учетом НДС) зависит от объема покупки:

  • розничная цена вермикулита — 13 500 рублей/куб.м. (мешок 100л — 1350 рублей, 50л — 675 рублей);
  • при покупке объема от 1 куб.м предусмотрена гибкая система скидок;
  • при покупке от 20 куб.м. цена 12 800 рублей/куб.м.


Склад работает в рабочие дни с 9:00 до 17:00, обед с 13:00 до 14:00.

Для получения дополнительной информации просьба обращаться по телефону: +7 951 000-22-78 (есть чат WhatsApp), или отправить сообщение на E-mail: primver16@gmail.com.

© 2025. Группа компаний "Примвер".
г. Владивосток

Поделитесь
Автор: Примвер,
27.05.25
Загрузка...
Логин
Пароль
Вы используете старую версию браузера. Доступен только ограниченный функционал сайта. Обновите, пожалуйста, браузер или используйте, например, Firefox или Chrome.